3 Rooms, 67 m², Optimized Distribution, Sorbier
€605,000
Hors frais notariés, d'enregistrement et de publicité foncière.Advert Reference: 86280751
For Sale By Agent
Agency: O'IMMOBILIER
This property has been brought to you by Green-Acres

€605,000 is approximately: | |
British Pounds: | £514,250 |
US Dollars: | $647,350 |
Canadian Dollars: | C$889,350 |
Australian Dollars: | A$998,250 |












Key Info
- Type: Residential (Apartment), Investment Property
- Bedrooms: 2
- Bath/ Shower Rooms: 0
- Habitable Size: 67 m²
- Land Size: 0 m²
Property Description
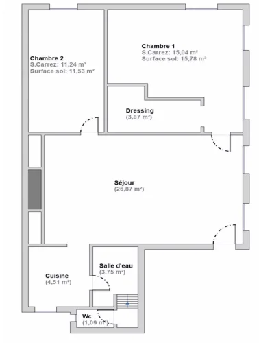
Paris XXème: Place Sorbier - 3-room apartment of 67 m² (67.4 m² floor area, 66.37 m² carrez) located on the 1st floor of 4 without elevator, on a courtyard planted with trees.
With a double exposure, this apartment has a parquet floor and an optimized layout.
You enter directly into a 27 m² living room, which distributes the kitchen with window and a shower room with toilet, and two bedrooms, respectively 20 m² (including 4 m² dressing room) and 12 m². The larger bedroom has 3 windows, two of which open onto the wooded courtyard. A large cellar completes the property.
Some restoration work is required. Many items have already been voted. Others will be voted on at a future Agm. Subsidies have been requested.
POINTS +: Charm - Distribution - Rental



€605,000 is approximately: | |
British Pounds: | £514,250 |
US Dollars: | $647,350 |
Canadian Dollars: | C$889,350 |
Australian Dollars: | A$998,250 |
Location Information
For Sale By Agent
Agency: O'IMMOBILIER
This property has been brought to you by Green-Acres